Hindernisfreies Bauen
122/103.3
| Standard | SNBS-Hochbau 2023.1 |
| Prüfrunde | Provisorische Zertifizierung (PZ) |
Messgrösse 1: Grundanforderungen
Nachweisdokumente:
- PZ: Baubewilligung respektive Baufreigabebestätigung
- DZ: Bauabnahme respektive Bezugsfreigabe
Messgrösse 2: Erhöhte Anforderungen
Nachweisdokumente:
- Ausgefülltes Hilfstool
- Pläne / Planausschnitte
Kommentare:
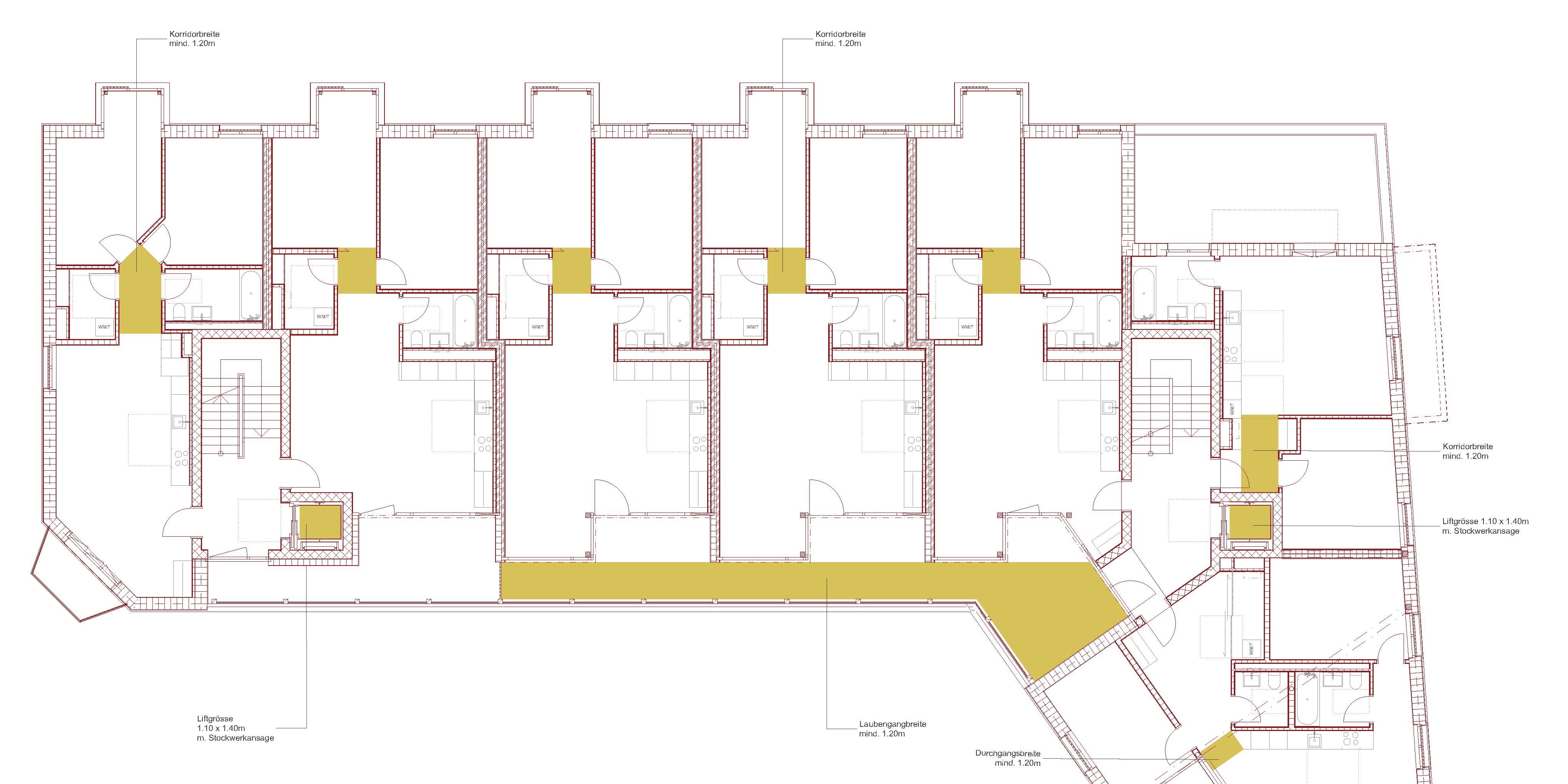
Hilfstool zu Kriterium 122 Hindernisfreies Bauen ausfüllen sowie die entsprechenden Pläne/Planausschnitte dazulegen, damit die Prüfperson die Massnahmen im Projekt schnell finden kann.
Beispiel Nachweis der deklarierten erhöhten Anforderungen anhand von Plänen:

Abbildung 1: Nachweis der erhöhten Anforderungen an die Hindernisfreiheit im Plan - Erdgeschoss (Verfasser: jessenvollenweider architektur, Projekt: Wohn- und Geschäftshaus Hauptstrasse 2 in Brugg, 21.05.2024)

Abbildung 2: Nachweis der erhöhten Anforderungen an die Hindernisfreiheit im Plan - Erdgeschoss (Verfasser: jessenvollenweider architektur, Projekt: Wohn- und Geschäftshaus Hauptstrasse 2 in Brugg, 21.05.2024)

Abbildung 3: Nachweis der erhöhten Anforderungen an die Hindernisfreiheit im Plan - Regelgeschoss (Verfasser: jessenvollenweider architektur, Projekt: Wohn- und Geschäftshaus Hauptstrasse 2 in Brugg, 21.05.2024)

Abbildung 4: Nachweis der erhöhten Anforderungen an die Hindernisfreiheit im Plan - Regelgeschoss (Verfasser: jessenvollenweider architektur, Projekt: Wohn- und Geschäftshaus Hauptstrasse 2 in Brugg, 21.05.2024)